Dėl plataus našumo, 2 vamzdžių ir papildomo 4 vamzdžių šilumokaičio, skirto šildymui, versijų spektro juos galima naudoti įvairioms reikmėms. O galimybė valdyti per "Wi-Fi" (pasirinktinai) leidžia valdyti klimatą iš bet kurios pasaulio vietos.





| Specifikacijos | Vienetai | DFCL 13 | DFCL 23 | DFCL 33 | DFCL 43 | DFCL 53 | ||||||||||
| Greičių skaičius | 1 | 3 | 5 | 1 | 3 | 5 | 1 | 3 | 5 | 1 | 3 | 5 | 1 | 3 | 5 | |
| Oro srautas | m3/h | 995 | 1340 | 1925 | 855 | 1550 | 2510 | 1815 | 2300 | 2790 | 2265 | 2855 | 3400 | 2905 | 3540 | 4400 |
| Bendras aušinimo pajėgumas | kW | 4,05 | 4,78 | 5,78 | 4,32 | 6,14 | 7,90 | 7,43 | 8,44 | 9,36 | 9,63 | 10,91 | 11,91 | 12,67 | 14,07 | 15,79 |
| Tariamasis aušinimo pajėgumas | kW | 3,42 | 4,24 | 5,49 | 3,29 | 5,08 | 7,12 | 6,02 | 7,10 | 8,16 | 7,70 | 9,05 | 10,16 | 10,31 | 11,82 | 13,78 |
| Šildymo pajėgumas | kW | 7,91 | 9,73 | 12,33 | 7,75 | 11,92 | 16,44 | 14,27 | 16,80 | 19,10 | 18,06 | 21,21 | 23,85 | 23,64 | 27,14 | 31,42 |
| Slėgio nuostoliai (aušinimas) | kPa | 7,0 | 9,6 | 13,7 | 8,7 | 16,9 | 27,4 | 18,7 | 23,8 | 28,8 | 18,4 | 23,5 | 28,0 | 17,2 | 21,2 | 26,5 |
| Slėgio nuostoliai (šildymas) | kPa | 4,8 | 7,1 | 11,0 | 5,1 | 14,1 | 20,9 | 12,3 | 16,6 | 21,1 | 9,2 | 12,5 | 15,5 | 10,9 | 14,1 | 18,4 |
| Energijos suvartojimas | W | 136 | 175 | 240 | 180 | 273 | 340 | 390 | 470 | 523 | 445 | 550 | 680 | 541 | 703 | 885 |
| Garso galios lygis | dB(A) | 46 | 52 | 59 | 47 | 57 | 64 | 58 | 62 | 66 | 60 | 65 | 69 | 64 | 69 | 75 |
| Garso slėgio lygis* | dB(A) | 37 | 43 | 50 | 38 | 48 | 55 | 49 | 53 | 57 | 51 | 56 | 60 | 55 | 60 | 66 |
Duomenys susiję su šiomis sąlygomis:
Vėsinimas: patalpos oro temperatūra +27 °C (sausa temperatūra), +19 °C (drėgna temperatūra); įleidžiamojo/išleidžiamojo vandens temperatūra +7/+12 °C.
Šildymas: patalpos oro temperatūra +20 °C; įleidžiamojo/išleidžiamojo vandens temperatūra +60/50 °C.
| Techniniai duomenys | Vienetai | DFCL14 | DFCL 24 | DFCL 34 | DFCL 44 | DFCL 54 | ||||||||||
| Greičių skaičius | 1 | 3 | 5 | 1 | 3 | 5 | 1 | 3 | 5 | 1 | 3 | 5 | 1 | 3 | 5 | |
| Oro srautas | m3/h | 940 | 1315 | 1835 | 855 | 1535 | 2360 | 1795 | 2265 | 2745 | 2245 | 2820 | 3340 | 2885 | 3505 | 4330 |
| Bendras aušinimo pajėgumas | kW | 4,67 | 5,71 | 6,84 | 5,04 | 7,36 | 9,39 | 8,94 | 10,24 | 11,43 | 11,47 | 13,12 | 14,38 | 14,99 | 16,80 | 18,93 |
| Tariamasis aušinimo pajėgumas | kW | 3,72 | 4,79 | 6,09 | 3,70 | 5,82 | 7,95 | 6,90 | 8,17 | 9,40 | 8,79 | 10,38 | 11,68 | 11,63 | 13,41 | 15,63 |
| Šildymo pajėgumas | kW | 8,76 | 11,22 | 14,20 | 8,77 | 13,76 | 18,71 | 16,43 | 19,50 | 22,36 | 20,86 | 24,69 | 27,90 | 27,08 | 31,31 | 36,49 |
| Slėgio nuostoliai (aušinimas) | kPa | 6,0 | 8,8 | 12,4 | 6,7 | 13,5 | 21,4 | 16,3 | 21,0 | 25,8 | 14,6 | 18,8 | 22,6 | 13,5 | 16,8 | 21,2 |
| Slėgio nuostoliai (šildymas) | kPa | 3,9 | 6,1 | 9,5 | 3,7 | 8,6 | 15,2 | 9,9 | 13,7 | 17,7 | 8,7 | 12,0 | 15,1 | 8,0 | 10,6 | 14,0 |
| Energijos suvartojimas | W | 130 | 173 | 232 | 180 | 268 | 340 | 380 | 464 | 520 | 445 | 550 | 680 | 536 | 689 | 868 |
| Garso galios lygis | dB(A) | 46 | 52 | 59 | 47 | 57 | 64 | 58 | 62 | 66 | 60 | 65 | 69 | 64 | 69 | 75 |
| Garso slėgio lygis* | dB(A) | 37 | 43 | 50 | 38 | 48 | 55 | 49 | 53 | 57 | 51 | 56 | 60 | 55 | 60 | 66 |
Duomenys susiję su šiomis sąlygomis:
Vėsinimas: patalpų oro temperatūra +27 °C (sausa temperatūra), +19 °C (drėgna temperatūra); įleidžiamojo/išleidžiamojo vandens temperatūra +7/+12 °C.
Šildymas: patalpos oro temperatūra +20 °C; įleidžiamojo/išleidžiamojo vandens temperatūra +50/45 °C.
| Techniniai duomenys | Vienetai | DFCL 14+1 | DFCL 24+1 | DFCL 34+1 | DFCL 44+1 | DFCL 54+1 | ||||||||||
| Greičių skaičius | 1 | 3 | 5 | 1 | 3 | 5 | 1 | 3 | 5 | 1 | 3 | 5 | 1 | 3 | 5 | |
| Oro srautas | m3/h | 910 | 1290 | 1775 | 850 | 1520 | 2285 | 1780 | 2235 | 2700 | 2225 | 2790 | 3295 | 2865 | 3475 | 4265 |
| Bendras aušinimo pajėgumas | kW | 4,57 | 5,65 | 6,75 | 5,03 | 7,32 | 9,23 | 8,90 | 10,17 | 11,32 | 11,42 | 13,04 | 14,29 | 14,93 | 16,74 | 18,80 |
| Tariamasis aušinimo pajėgumas | kW | 3,62 | 4,72 | 5,96 | 3,69 | 5,77 | 7,77 | 6,86 | 8,10 | 9,29 | 8,74 | 10,30 | 11,58 | 11,58 | 13,34 | 15,48 |
| Šildymo pajėgumas | kW | 4,49 | 5,46 | 6,47 | 4,76 | 6,73 | 8,30 | 8,03 | 9,07 | 9,99 | 10,50 | 11,86 | 12,95 | 13,37 | 14,85 | 16,58 |
| Slėgio nuostoliai (aušinimas) | kPa | 5,8 | 8,6 | 12,0 | 6,6 | 13,4 | 20,7 | 16,1 | 20,7 | 25,4 | 14,5 | 18,6 | 22,3 | 13,4 | 16,7 | 20,9 |
| Slėgio nuostoliai (šildymas) | kPa | 15,3 | 21,8 | 29,6 | 15,7 | 29,6 | 43,5 | 18,2 | 22,7 | 27,1 | 32,2 | 40,3 | 47,2 | 29,7 | 36,1 | 44,1 |
| Energijos suvartojimas | W | 127 | 170 | 226 | 176 | 262 | 330 | 375 | 458 | 515 | 440 | 542 | 670 | 530 | 678 | 851 |
| Garso galios lygis | dB(A) | 46 | 52 | 59 | 47 | 57 | 64 | 58 | 62 | 66 | 60 | 65 | 69 | 64 | 69 | 75 |
| Garso slėgio lygis* | dB(A) | 37 | 43 | 50 | 38 | 48 | 55 | 49 | 53 | 57 | 51 | 56 | 60 | 55 | 60 | 66 |
Duomenys susiję su šiomis sąlygomis:
Vėsinimas: patalpų oro temperatūra +27 °C (sausa temperatūra), +19 °C (drėgna temperatūra); įleidžiamojo/išleidžiamojo vandens temperatūra +7/+12 °C.
Šildymas: patalpos oro temperatūra +20 °C; įleidžiamojo/išleidžiamojo vandens temperatūra +50/45 °C.
| Techniniai duomenys | Vienetai | DFCL 13+1 | DFCL 23+1 | DFCL 33+1 | DFCL 43+1 | DFCL 53+1 | ||||||||||
| Greičių skaičius | 1 | 3 | 5 | 1 | 3 | 5 | 1 | 3 | 5 | 1 | 3 | 5 | 1 | 3 | 5 | |
| Oro srautas | m3/h | 940 | 1315 | 1835 | 855 | 1535 | 2360 | 1795 | 2265 | 2745 | 2245 | 2820 | 3340 | 2885 | 3505 | 4330 |
| Bendras aušinimo pajėgumas | kW | 3,92 | 4,74 | 5,64 | 4,32 | 6,11 | 7,66 | 7,38 | 8,37 | 9,30 | 9,58 | 10,84 | 11,80 | 12,61 | 14,01 | 15,63 |
| Tariamasis aušinimo pajėgumas | kW | 3,28 | 4,18 | 5,30 | 3,29 | 5,05 | 6,83 | 5,97 | 7,03 | 8,07 | 7,65 | 8,97 | 10,04 | 10,26 | 11,76 | 13,62 |
| Šildymo pajėgumas | kW | 4,58 | 5,51 | 6,58 | 4,78 | 6,76 | 8,44 | 8,07 | 9,12 | 10,08 | 10,53 | 11,93 | 13,04 | 13,42 | 14,92 | 16,73 |
| Slėgio nuostoliai (aušinimas) | kPa | 6,6 | 9,4 | 13,2 | 8,7 | 16,8 | 25,8 | 18,4 | 23,5 | 28,4 | 18,3 | 23,2 | 27,5 | 17,1 | 21,0 | 26,1 |
| Slėgio nuostoliai (šildymas) | kPa | 13,7 | 19,2 | 26,5 | 15,9 | 29,8 | 44,8 | 18,4 | 23,0 | 27,5 | 32,4 | 40,8 | 47,8 | 30,0 | 36,4 | 44,6 |
| Energijos suvartojimas | W | 130 | 173 | 232 | 180 | 268 | 340 | 380 | 464 | 520 | 445 | 550 | 680 | 536 | 689 | 868 |
| Garso galios lygis | dB(A) | 46 | 52 | 59 | 47 | 57 | 65 | 58 | 62 | 66 | 60 | 65 | 69 | 64 | 69 | 75 |
| Garso slėgio lygis* | dB(A) | 37 | 43 | 50 | 38 | 48 | 55 | 49 | 53 | 57 | 51 | 56 | 55 | 55 | 60 | 66 |
Duomenys susiję su šiomis sąlygomis:
Vėsinimas: patalpų oro temperatūra +27 °C (sausa temperatūra), +19 °C (drėgna temperatūra); įleidžiamojo/išleidžiamojo vandens temperatūra +7/+12 °C.
Šildymas: patalpos oro temperatūra +20 °C; įleidžiamojo/išleidžiamojo vandens temperatūra +50/45 °C.
2 vamzdžių sistema
| Techniniai duomenys , esant 150 Pa |
Vienetai | DFCL 64 | DFCL 66 | DFCL 74 | DFCL 76 | ||||||||
| Oro srautas | m3/h | 1880 | 3385 | 4800 | 1860 | 3350 | 4740 | 3925 | 5070 | 7100 | 3920 | 5050 | 7030 |
| Bendras aušinimo pajėgumas | kW | 12,42 | 18,73 | 22,89 | 14,36 | 22,59 | 28,28 | 21,54 | 25,33 | 30,63 | 26,09 | 31,17 | 38,42 |
| Tariamasis aušinimo pajėgumas | kW | 8,88 | 14,16 | 17,98 | 9,84 | 16,20 | 20,91 | 16,05 | 19,46 | 24,53 | 18,49 | 22,66 | 28,96 |
| Šildymo pajėgumas | kW | 20,86 | 33,52 | 43,60 | 22,58 | 37,53 | 49,77 | 39,34 | 47,85 | 61,14 | 44,20 | 54,45 | 70,64 |
| Slėgio nuostoliai (aušinimas) | kPa | 7,4 | 15,3 | 22,6 | 9,2 | 20,5 | 31,4 | 14,4 | 19,3 | 27,6 | 18,3 | 25,1 | 37,1 |
| Slėgio nuostoliai (šildymas) | kPa | 3,9 | 9,1 | 14,7 | 4,4 | 11,0 | 18,2 | 8,5 | 12,1 | 18,8 | 9,7 | 14,2 | 22,6 |
| Energijos suvartojimas | W | 570 | 788 | 1191 | 565 | 771 | 1163 | 1610 | 1738 | 2502 | 1605 | 1720 | 2452 |
| Garso galios lygis | dB(A) | 63 | 71 | 77 | 63 | 71 | 77 | 71 | 75 | 81 | 71 | 75 | 81 |
| Garso slėgio lygis* | dB(A) | 54 | 62 | 68 | 54 | 62 | 68 | 62 | 66 | 72 | 62 | 66 | 72 |
Duomenys susiję su šiomis sąlygomis:
Vėsinimas: patalpos oro temperatūra +27 °C (sausa temperatūra), +19 °C (drėgna temperatūra); įleidžiamojo/išleidžiamojo vandens temperatūra +7/+12 °C.
Šildymas: patalpos oro temperatūra +20 °C; įleidžiamojo/išleidžiamojo vandens temperatūra +60/50 °C.
| Specifikacijos , esant 150 Pa |
Vienetai | DFCL 64+2 | DFCL 66+2 | DFCL 74+2 | DFCL 76+2 | ||||||||
| Oro srautas | m3/h | 1860 | 3330 | 4680 | 1850 | 3300 | 4600 | 3920 | 5040 | 6980 | 3910 | 5000 | 6900 |
| Bendras aušinimo pajėgumas | kW | 12,33 | 18,56 | 22,52 | 14,10 | 22,04 | 27,53 | 21,53 | 25,25 | 30,36 | 26,08 | 30,98 | 38,04 |
| Tariamasis aušinimo pajėgumas | kW | 8,81 | 14,02 | 17,62 | 9,59 | 15,70 | 20,26 | 16,05 | 19,39 | 24,28 | 18,48 | 22,51 | 28,62 |
| Šildymo pajėgumas | kW | 19,81 | 29,78 | 37,13 | 19,73 | 29,59 | 36,76 | 35,50 | 41,88 | 51,31 | 35,41 | 41,68 | 50,95 |
| Slėgio nuostoliai (aušinimas) | kPa | 7,3 | 15,0 | 22,0 | 9,1 | 20,1 | 30,3 | 14,4 | 19,1 | 27,1 | 18,3 | 24,8 | 36,3 |
| Slėgio nuostoliai (šildymas) | kPa | 11,9 | 24,9 | 37,0 | 11,8 | 24,6 | 36,3 | 23,8 | 32,0 | 46,1 | 23,7 | 31,7 | 45,5 |
| Energijos suvartojimas | W | 565 | 762 | 1137 | 560 | 749 | 1105 | 1605 | 1710 | 2417 | 1587 | 1677 | 2364 |
| Garso galios lygis | dB(A) | 63 | 71 | 77 | 63 | 71 | 77 | 75 | 81 | 71 | 75 | 75 | 81 |
| Garso slėgio lygis* | dB(A) | 54 | 62 | 68 | 54 | 62 | 68 | 62 | 66 | 72 | 62 | 66 | 72 |
Duomenys susiję su šiomis sąlygomis:
Vėsinimas: patalpos oro temperatūra +27 °C (sausa temperatūra), +19 °C (drėgna temperatūra); įleidžiamojo/išleidžiamojo vandens temperatūra +7/+12 °C.
Šildymas: patalpos oro temperatūra +20 °C; įleidžiamojo/išleidžiamojo vandens temperatūra +70/60 °C

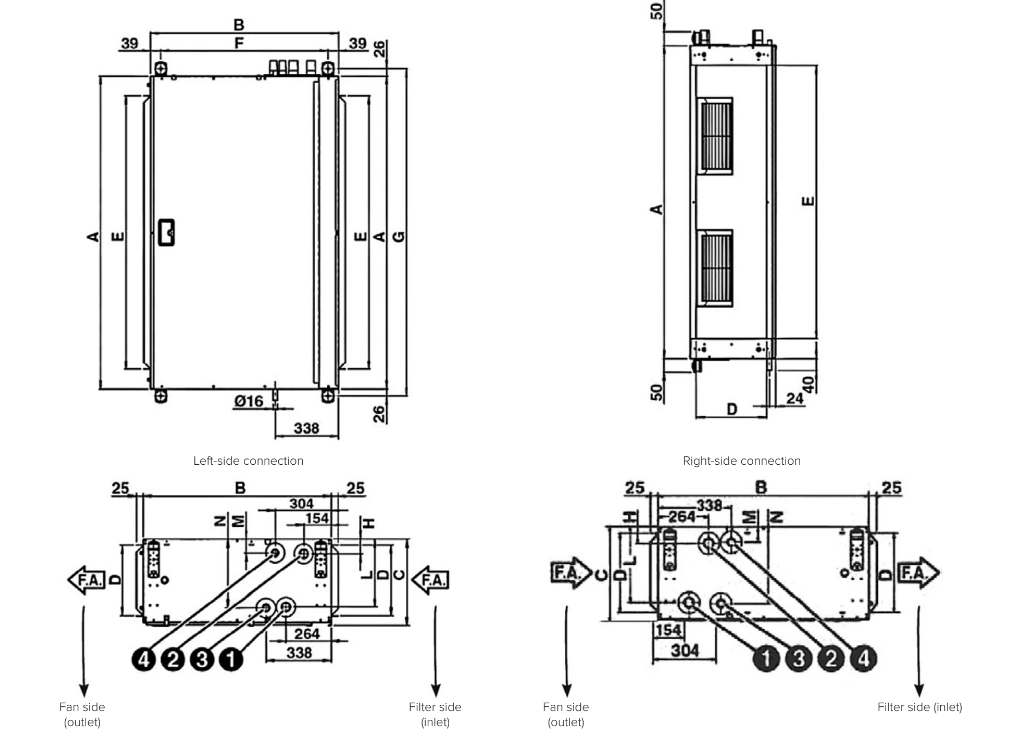
DFCL ventiliatorinių šilumokaičių matmenys
| Modelis | A | B | C | D | E | F | G | H | L | M | N |
| DFCL1 | 1133 | 698 | 310 | 255 | 991 | 620 | 1185 | 54 | 245 | 50 | 249 |
| DFCL2 | 1133 | 698 | 310 | 255 | 991 | 620 | 1185 | 54 | 245 | 50 | 249 |
| DFCL3 | 1133 | 698 | 360 | 305 | 991 | 620 | 1185 | 54 | 295 | 50 | 299 |
| DFCL4 | 1445 | 863 | 360 | 293 | 1302 | 775 | 1497 | 58 | 291 | 54 | 295 |
| DFCL5 | 1445 | 863 | 435 | 368 | 1302 | 775 | 1497 | 58 | 367 | 54 | 370 |
| Modelis | 1 (ĮVADAS) | 2 (OUTLET) | 3 (ĮVADAS) | 4 (OUTLET) |
| DFCL1 | 3/4" | 3/4" | 3/4" | 3/4" |
| DFCL2 | 1" | 1" | 3/4" | 3/4" |
| DFCL3 | 1" | 1" | 3/4" | 3/4" |
| DFCL4 | 1/4" | 1/4" | 1" | 1" |
| DFCL5 | 1/4" | 1/4" | 1" | 1" |
DFCL ventiliatorinių šilumokaičių išvaizda ir prijungimas

DFCL ventiliatorinių kontūro ventiliatorių svoris
| Modelis | Grynasis svoris (kg) | Supakuotas svoris (kg) | Šilumokaičio tūris (l) | ||||||||
|
DFCL 6 |
4R 124 |
4+2R 134 |
6R 130 |
6+2R 140 |
4R 127 |
4+2R 137 |
6R 133 |
6+2R 143 |
4R 7,6 |
6R 11,1 |
2R 4,1 |
| DFCL 7 | 140 | 152 | 148 | 160 | 143 | 155 | 151 | 163 | 9,7 | 13,8 | 5,5 |
DFCL ventiliatorinių šilumokaičių matmenys
| Modelis | A | B | C | D | E | F | G | H | L | M | N |
| DFCL 6 | 1535 | 1100 | 488 | 421 | 1393 | 1022 | 1587 | 59 | 416 | 55 | 421 |
| DFCL 7 | 1535 | 1100 | 588 | 521 | 1393 | 1022 | 1587 | 59 | 516 | 55 | 521 |
| Modelis | 1 (ĮVADAS) | 2 (OUTLET) | 3 (ĮVADAS) | 4 (OUTLET) |
| DFCL6 | 1/4" | 1/4" | 1" | 1" |
| DFCL7 | 1/4" | 1/4" | 1" | 1" |