"Mycond" pristato visiškai naują MVC-A serijos tiekimo ir ištraukimo įrenginį, skirtą patikimai palaikyti komfortišką aplinką biure, sandėlyje ar pagalbinėse patalpose. Pažangus daugiafunkcinis MVC-A įrenginys turi supaprastintą konstrukciją, kuri padidina jo patikimumą. Gaminių asortimente siūlomi įrenginiai, kurių našumas yra nuo 500 iki 2000m3/h.

**su specialiu valdikliu, kurį galima įsigyti papildomai
* Galimas papildomas variantas
Pagrindinės šio kompaktiško įrenginio savybės - tiekiamo ir šalinamo oro srautų išdėstymas, pažangūs G4 filtrai, taip pat šilumos arba šalčio rekuperacija. Tobulas patalpų mikroklimatas yra svarbiausias prioritetas, nes nuo oro, kuriuo kvėpuojame, kokybės priklauso mūsų sveikata, gera savijauta, taip pat miego kokybė.

Įrenginys užtikrina visas būtinas tobulo patalpų klimato sąlygas net ir veikdamas išjungties režimu. Celiuliozės rekuperatorius leidžia susigrąžinti ne tik šilumą ir šaltį, bet ir drėgmę, taip padidinant įrenginio efektyvumą ir taupant naudotojo išlaidas šildymui, vėsinimui ir reikiamo drėgmės lygio palaikymui. Dėl paprastos konstrukcijos įrenginį lengva prižiūrėti, o žemyn atsidarančios įėjimo durys palengvina montavimą ankštose erdvėse. Rekuperatorių ir filtrus taip pat galima lengvai nuimti norint atlikti techninę priežiūrą ar pakeisti.
Vasarą rekuperacijos sistema taupo elektros energiją oro kondicionavimui, nes dalį lauko šilumos grąžina atgal į lauką.

Žiemą dalis patalpų šilumos grąžinama į patalpą, taip sutaupant daug lėšų patalpų ir oro šildymui.

Duomenys pateikiami kaip nuoroda. Daug kas priklauso nuo patalpos oro drėgmės, lauko oro drėgmės, patalpos šilumos izoliacijos, šilumos izoliacijos ir oro kanalų ilgio ir kt.
| Specifikacijos | Vienetai | MVC500-A | MVC700-A | MVC1000-A | MVC1500-A | MVC2000-A |
| Oro srautas | m3/h | 500/360 | 750/550 | 1000/800 | 1500/1200 | 2000 |
| Išorinis slėgis (aukštas/žemas) | Pa | 290/260 | 290/260 | 485/365 | 485/470 | 490 |
| Entalpijos efektyvumas, aušinimas | % | 58 | 55 | 56 | 54 | 54 |
| Entilpijos efektyvumas, šildymas | % | 67 | 65 | 66 | 64 | 65 |
| Šilumos perdavimo efektyvumas, aušinimas | % | 60 | 56 | 59 | 55 | 58 |
| Šilumos perdavimo efektyvumas, šildymas | % | 71 | 69 | 71 | 68 | 69 |
| Triukšmo lygis | dB | 40 | 48 | 48 | 50 | 55 |
| Įtampa | V | 220 V, 50 Hz, 1 fazė | 220 V, 50 Hz, 1 fazė | 220 V, 50 Hz, 1 fazė | 220 V, 50 Hz, 1 fazė | 220 V, 50 Hz, 1 fazė 380 V, 50 Hz, 3 fazės |
| Įvesties galia (didelė / maža) | W | 180/150 | 200/160 | 600/500 | 1100/900 | 1400 |
| Filtrai | vnt. | 2 | 2 | 4 | 4 | 4 |
| Rekuperatorius | vnt. | 1 | 1 | 2 | 2 | 2 |
| Maitinimo kabelis | mm2 | 4х1.5 | 4х1.5 | 4х1.5 | 4х1.5 | 4х1.5 |
| Ventiliatoriaus greičiai | 2 greičiai | 2 greičiai | 2 greičiai | 2 greičiai | 2 greičiai | |
| Kanalo prijungimas | mm | 195 | 195 | 195 | 195 | 225*234 |
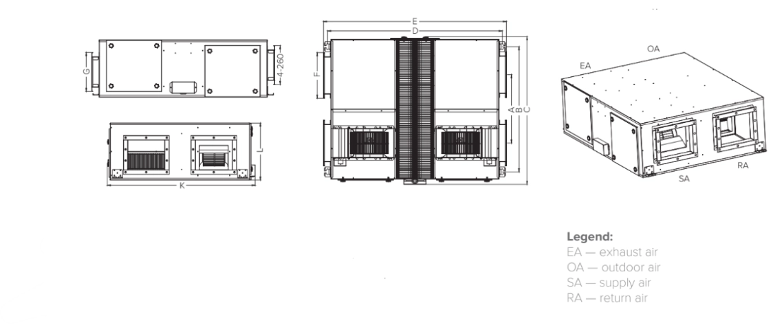
Vėdinimo įrenginiai, MVC***-A serija

Ventiliacijos įrenginiai MVC500-A - MVC700-A
| Modelis | A | B | C | D | E | F | G | L | K | M | N |
| MVC500-A- MVC700-A | 446 | 750 | 785 | 596 | 861 | Ø194 | 272 | 768 | 793 | 49 | 252 |
Visi matmenys nurodyti milimetrais.

Ventiliacijos įrenginiai MVC1000-A
| Modelis | A | B | C | D | E | F | G | L | K |
| MVC1000-A | 399 | 731 | 888 | 1168 | 1265 | Ø198 | 366 | 888 | 36 |
Visi matmenys nurodyti milimetrais.

Ventiliacijos įrenginiai MVC1500-A
| Modelis | A | B | C | D | E | F | G | L |
| MVC1500-A | 402 | 737 | 888 | 1168 | 1289 | Ø250 | 382 | 888 |
Visi matmenys nurodyti milimetrais.

Ventiliacijos įrenginiai MVC2000-A
| Modelis | A | B | C | D | E | F | G | L | K |
| MVC2000-A | 457 | 837 | 988 | 1168 | 1223 | Ø306 | 260 | 382 | 988 |
Visi matmenys nurodyti milimetrais.
